
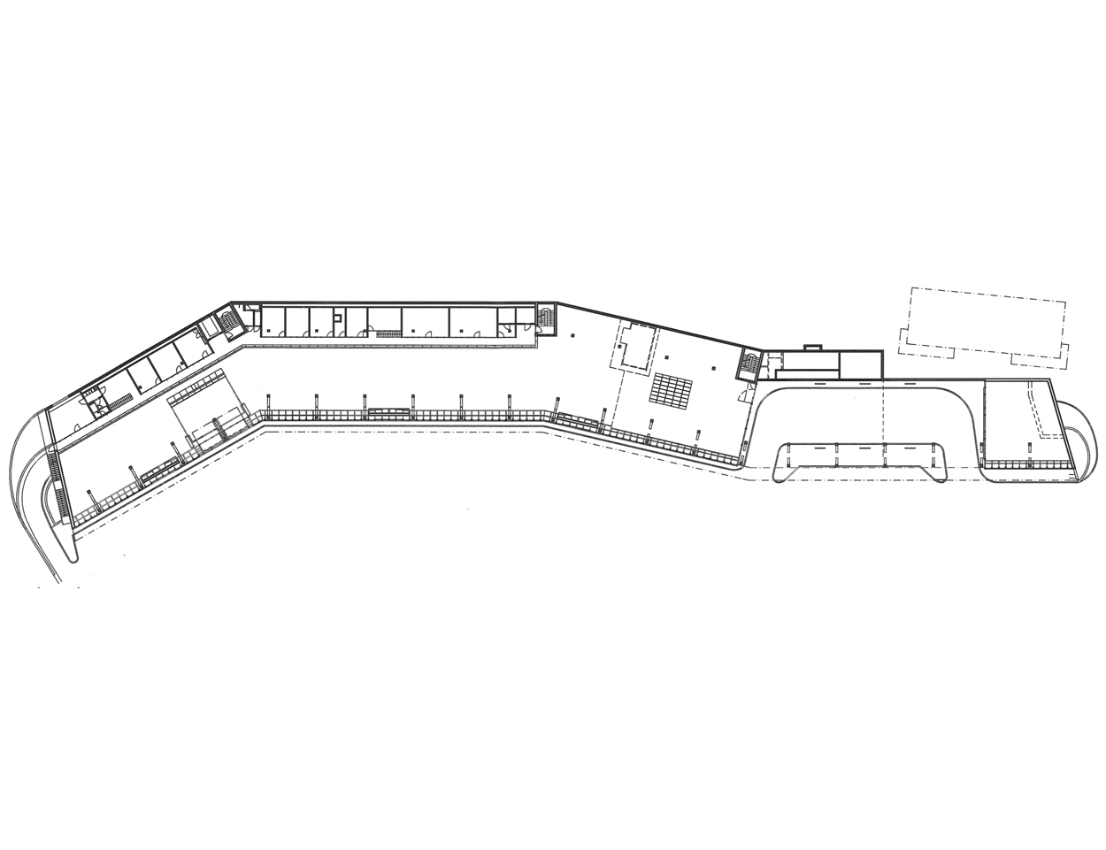
AUTOHAUS ITEN SIHLBRUGG 2006
Ausführung durch Generalunternehmung
Landschaftsarchitekten:
Rotzler Krebs Partner Landschaftsarchitekten
Autohaus
Werkstatt
Tankstelle
Projektteam:
Renzo Bader, Beat Ferrario,
Urs Borner, Mathias Ernst
Bauherrschaft:
Iten Autos
Baukosten:
ca. 12 Mio. CHF
Bauzeit:
12 Monate












