
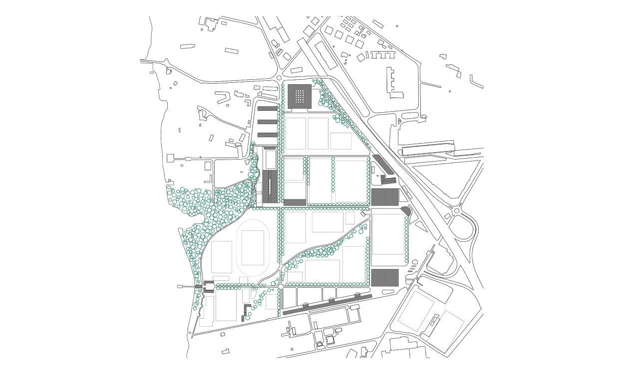
CENTRO SPORTIVO NAZIONALE DI NUOTO TENERO 2017
Concorso in procedura libera
Scelta ristretta
Architetti paesaggisti:
ARGE Tenero
Ingegneri:
Schnetzer Puskas Ingenieure AG
Progettisti involucro edilizio:
Mebatech AG
Progettisti RVCSE:
Hans Abicht AG
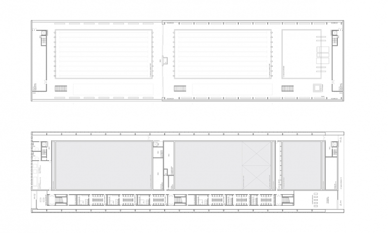
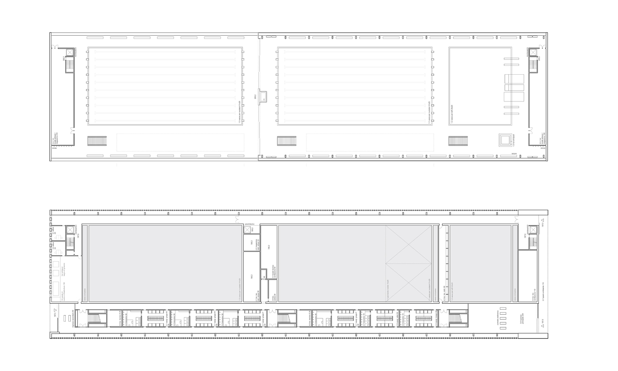
Centro sportivo di nuoto
Palestra
Campi sportivi
Alloggi
Autori del progetto:
Renzo Bader, Lucrezia Rapillo,
Magdalena Winiarz, Fabio Bernasconi,
Maria Louise Tolstrup
Mandante del concorso:
Ufficio Federale delle Costruzioni e della Logistica UFCL






