
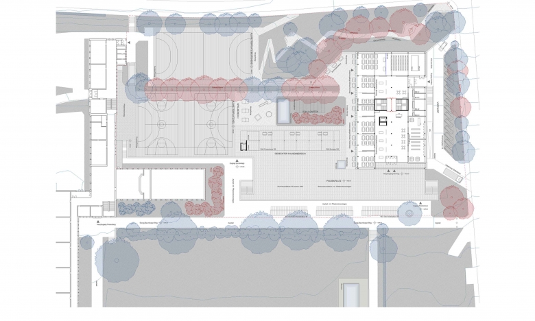
ERSATZNEUBAU SCHULHAUS BORRWEG 2019
Offener Projektwettbewerb
Primarschule
Musikkonservatorium
Mensa und Küche
Doppelsporthalle
Schulschwimmanlage
Bauingenieure:
Halleringenieure AG Baar
Projektteam:
Renzo Bader, Lucrezia Rapillo,
Fabio Bernasconi, Stephan Kryenbühl
Auftraggeber:
Amt für Hochbauten Stadt Zürich








