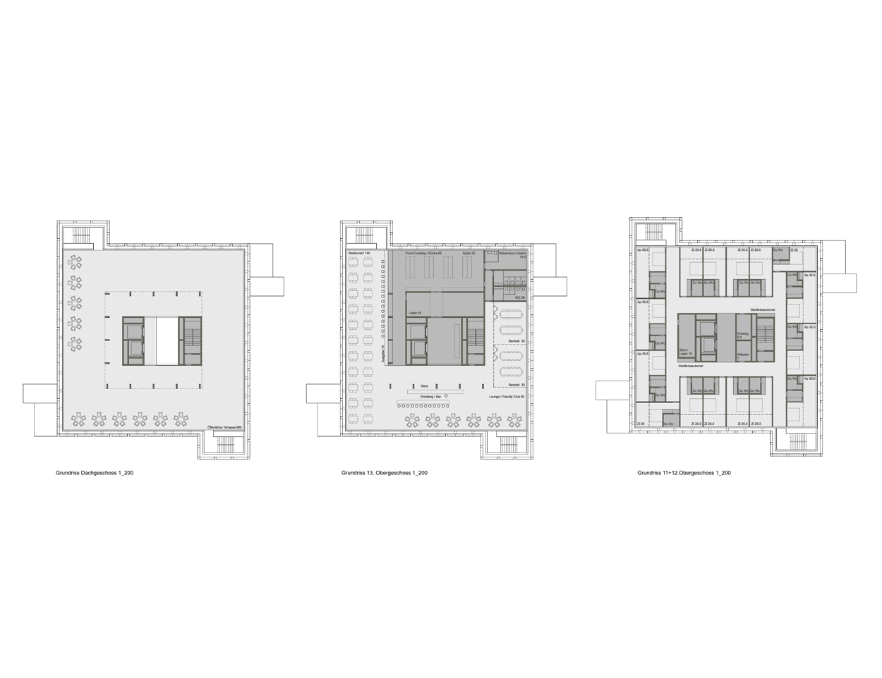
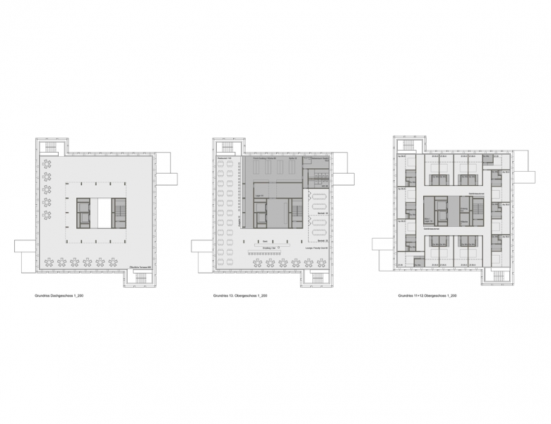
ETH AUFSTOCKUNG PHYSIKGEBÄUDE ZÜRICH 2007

Projektwettbewerb

Hotel
Restauration
Projektteam:
Renzo Bader, Daniel Siegfried,
Heiko Frodl, Laura Lienert
Auftraggeber:
ETH Zürich