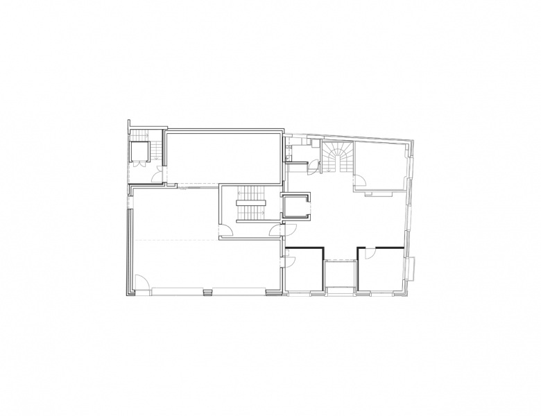
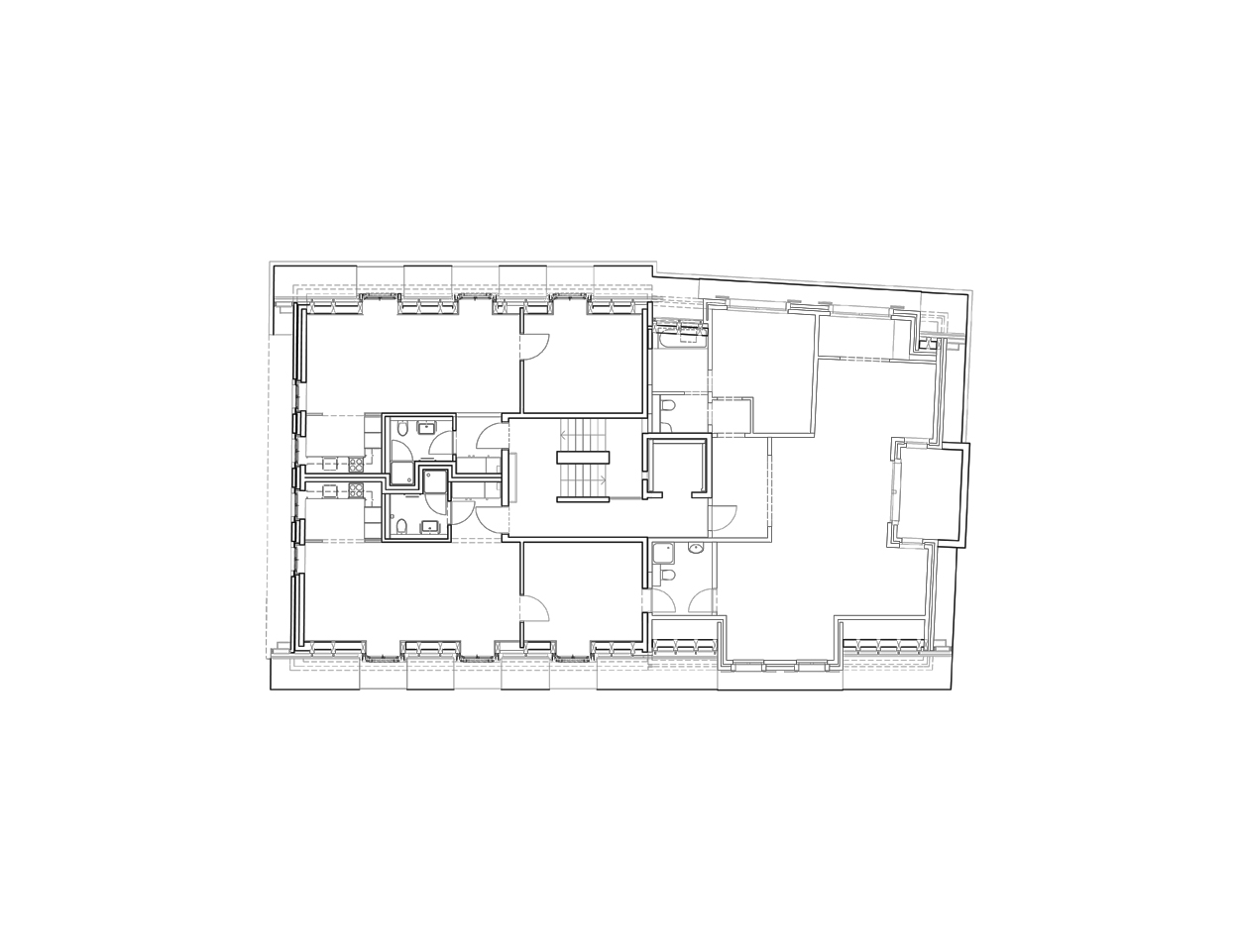
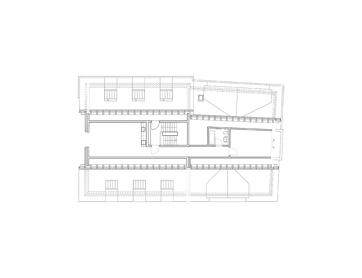
HAUS CENTRAL ZUG 2005

Ausführung konventionell

Wohnen
Gewerbe
Projektteam:
Renzo Bader, Dominik Irmiger,
Marcel Krauter
Bauherrschaft:
privat
Baukosten:
ca. 5 Mio. CHF
Bauzeit:
18 Monate