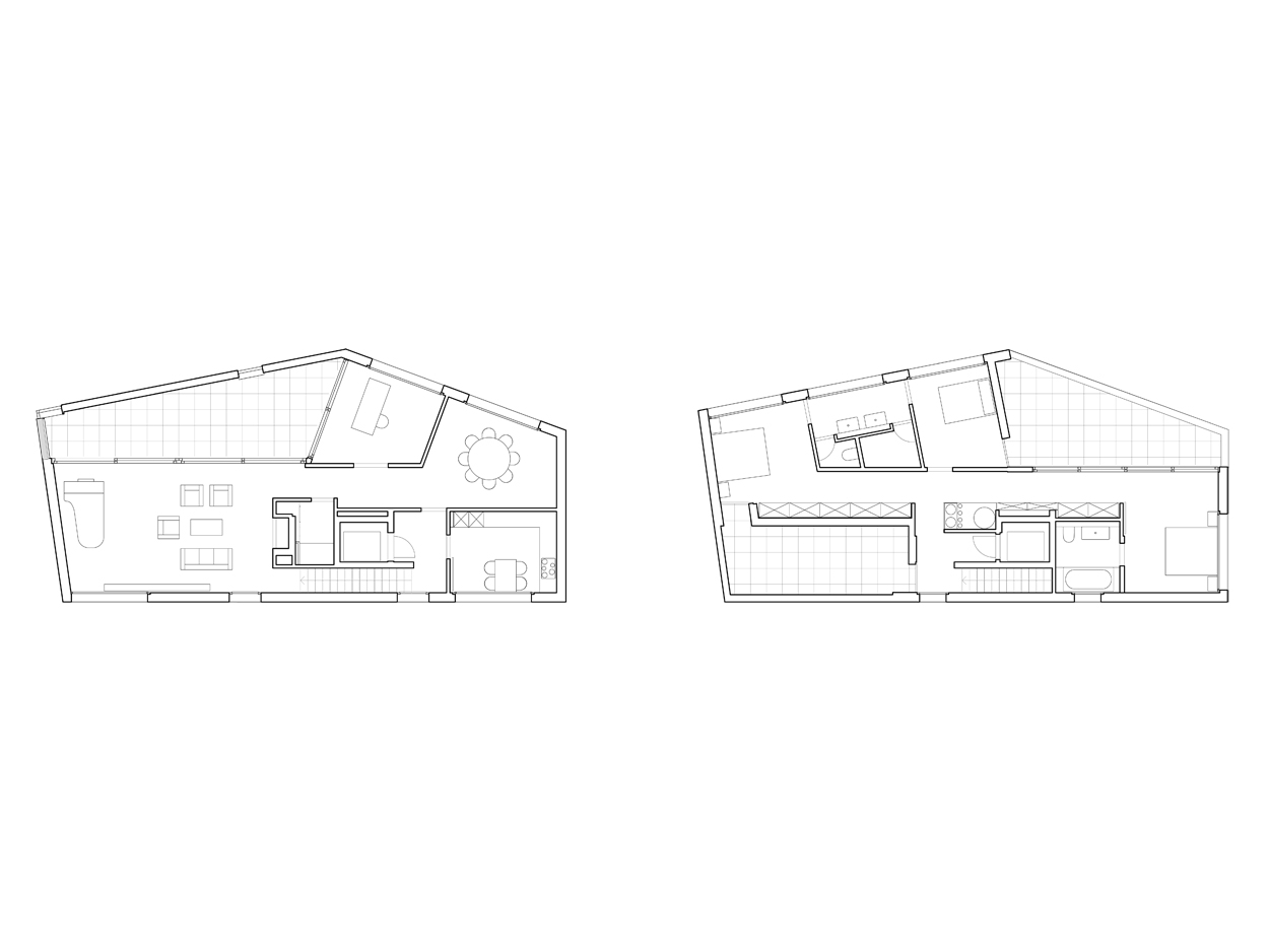
HEUBACHSTRASSE HORGEN 2009

Ausführung konventionell

Wohnüberbauung Projektteam:
Renzo Bader, Adrian Scola,
Heiko Frodl, Britta Brauer
Bauherrschaft:
privat
Baukosten:
ca. 8 Mio. CHF
Bauzeit:
12 Monate