
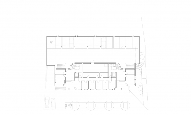
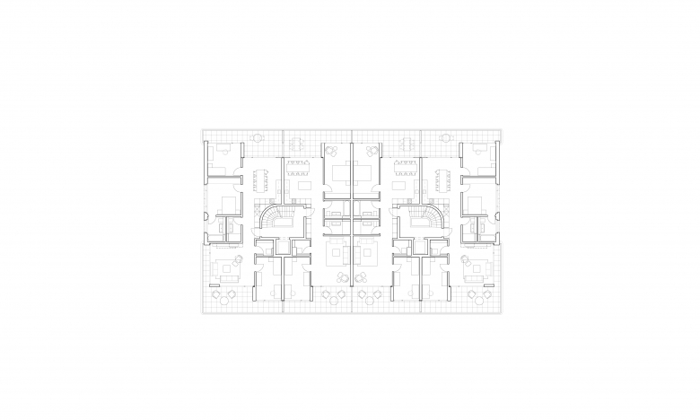
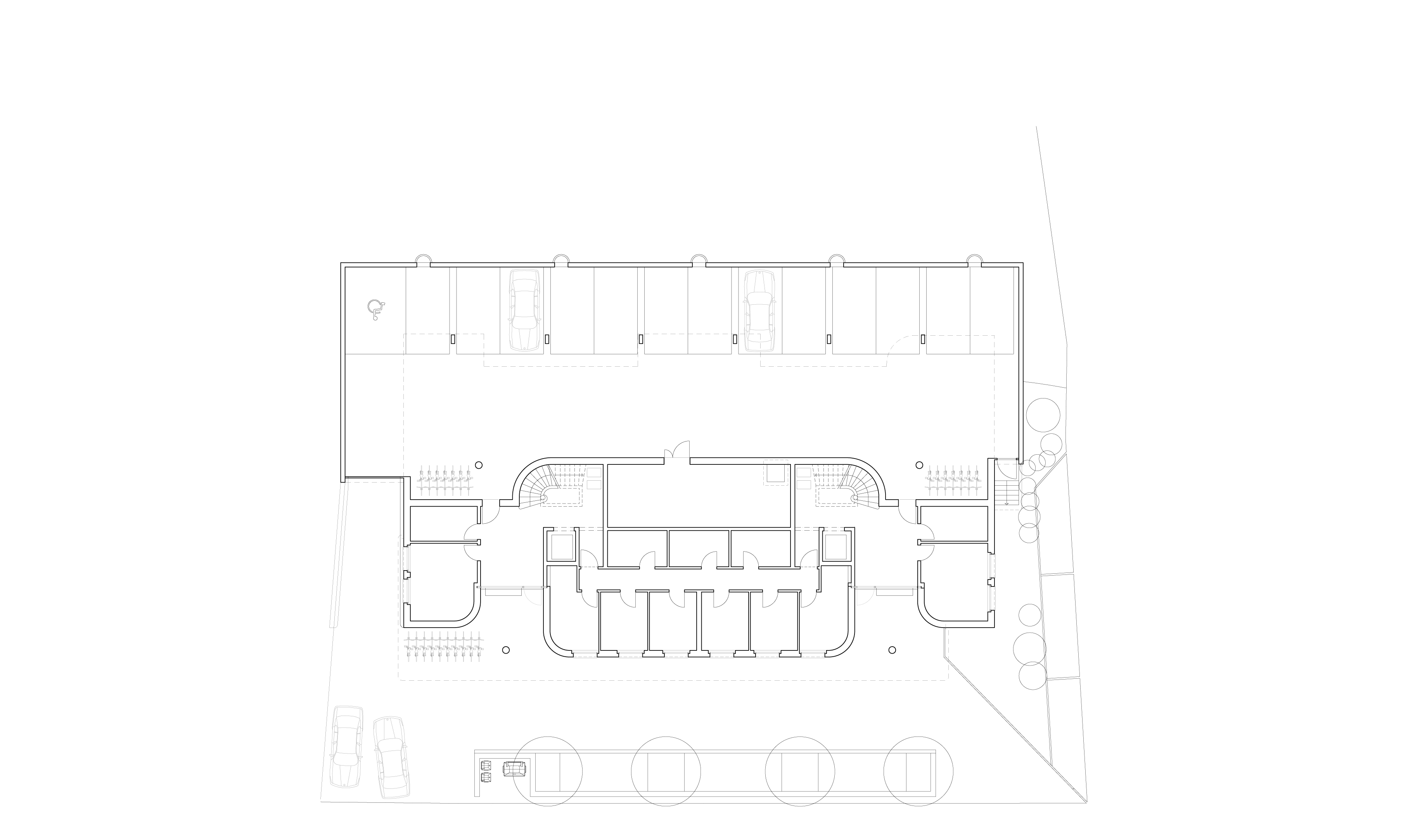
HOLZHÄUSERNSTRASSE MENZINGEN
Ausführung konventionell
Neubau
Eigentums- und Mietwohnungen
Gewerbe-Atelieroption
Projektteam:
Renzo Bader, Magdalena Winiarz,
Maria Louise Tolstrup, Laura Pfeiffer
Bauherrschaft:
privat
Baukosten:
ca. 7.5 Mio CHF
Bauzeit:
20 Monate















