
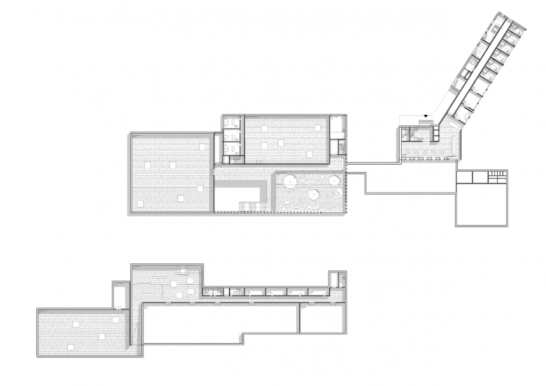
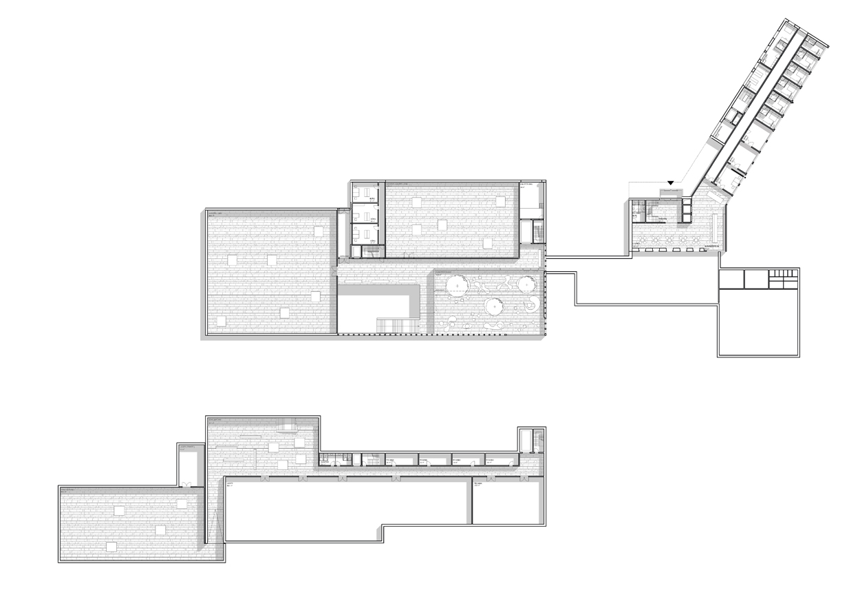
KANTONSSPITALAREAL ZUG 2012
Eingeladener Studienauftrag 1. Rang
Landschaftsarchitekten:
Fontana Landschaftsarchitektur GmbH
Kunsthaus
Restauration
Hotel
Gewerbe
Wohnen
Alterswohnen
Projektteam:
Renzo Bader, Balazs Szoeke,
Andrea Kulcsar
Auftraggeber:
Baudirektion Kanton Zug







