
NEUBAU HEILPÄDAGOGISCHE SCHULE BERN 2018
Offener Projektwettbewerb
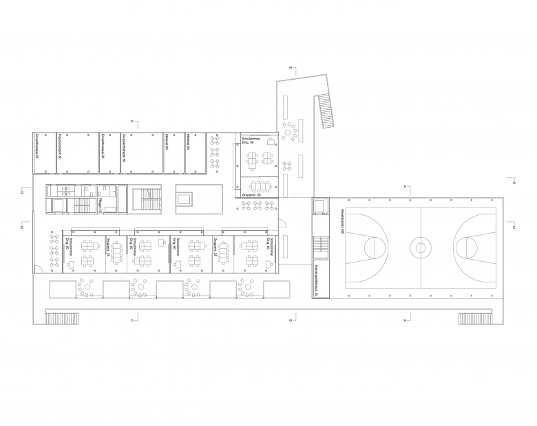
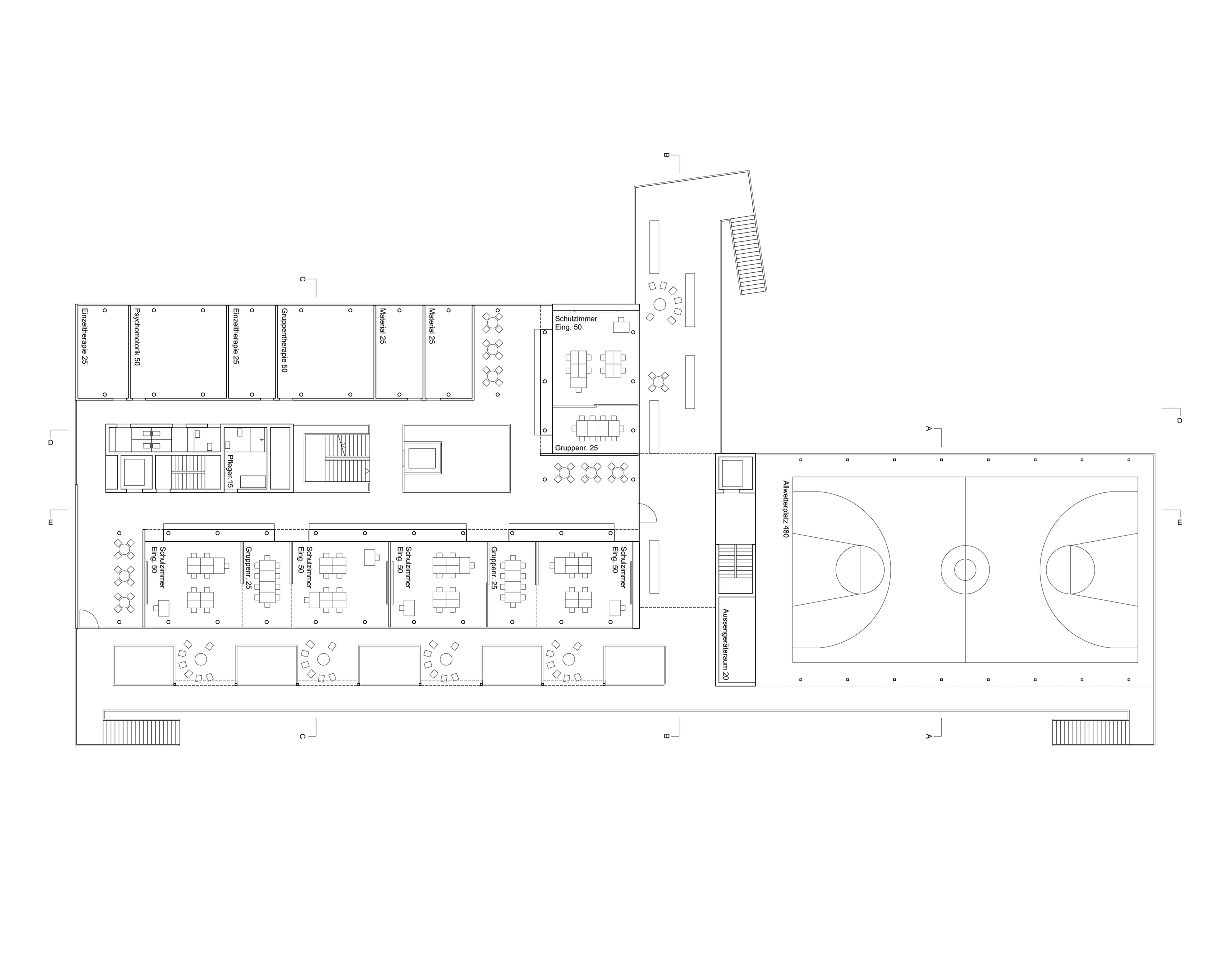
Unterrichts-/Therapieräume
Allgemeine Räume
Verwaltung
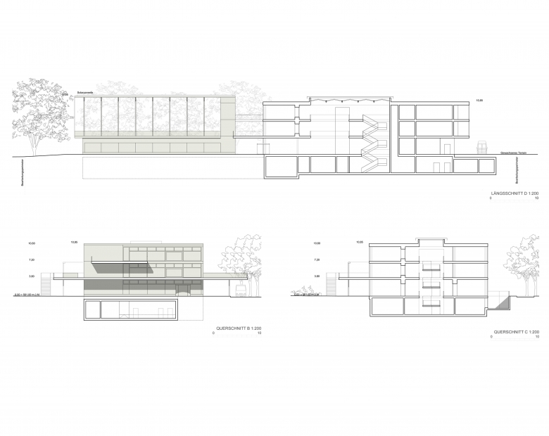
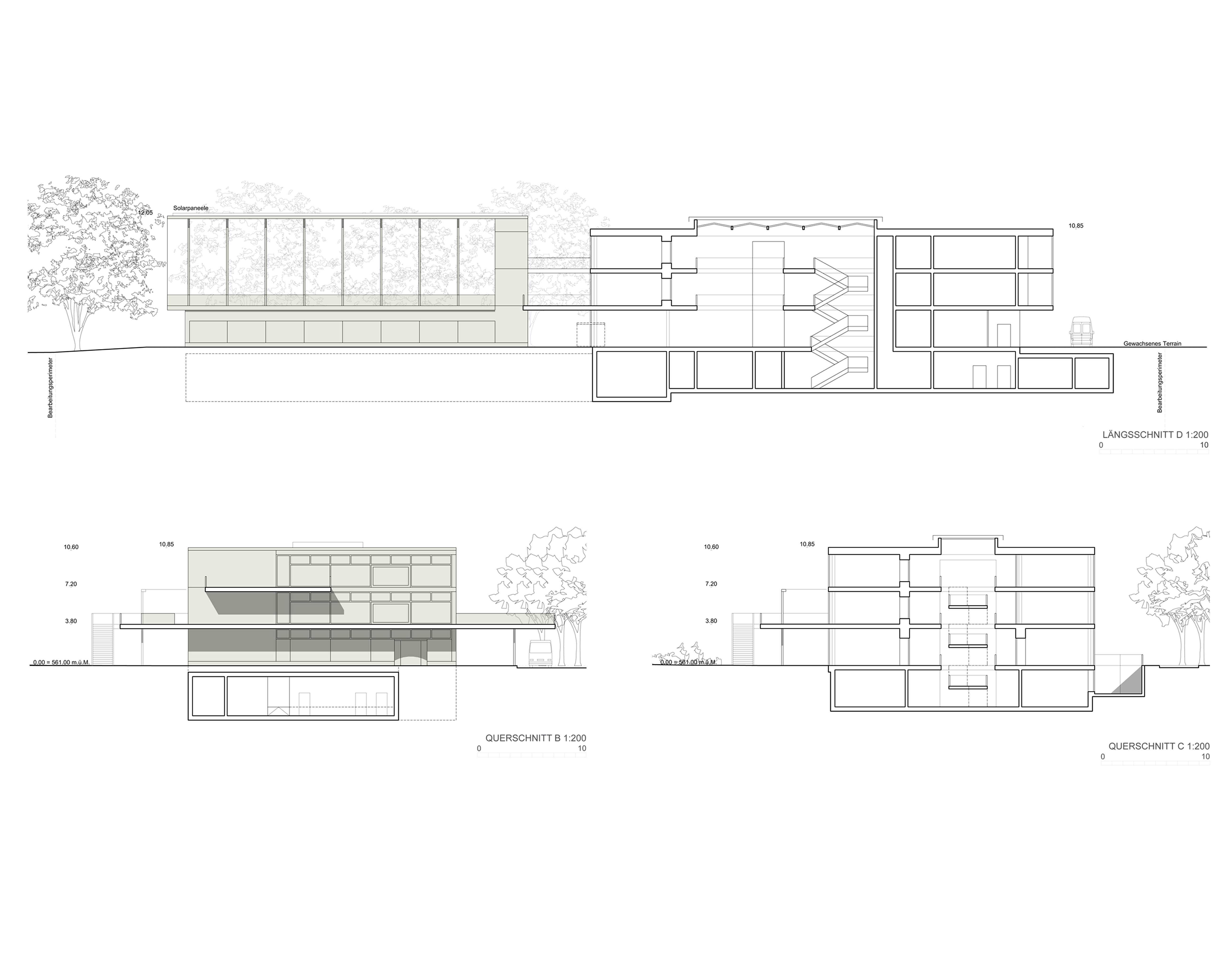
Turnhalle
Quartierküche
Projektteam:
Renzo Bader, Lucrezia Rapillo,
Fabio Bernasconi, Magdalena Winiarz
Auftraggeber:
Hochbau Stadt Bern (HSB)







