
Neues Luzerner Theater 2021
Offener Projektwettbewerb
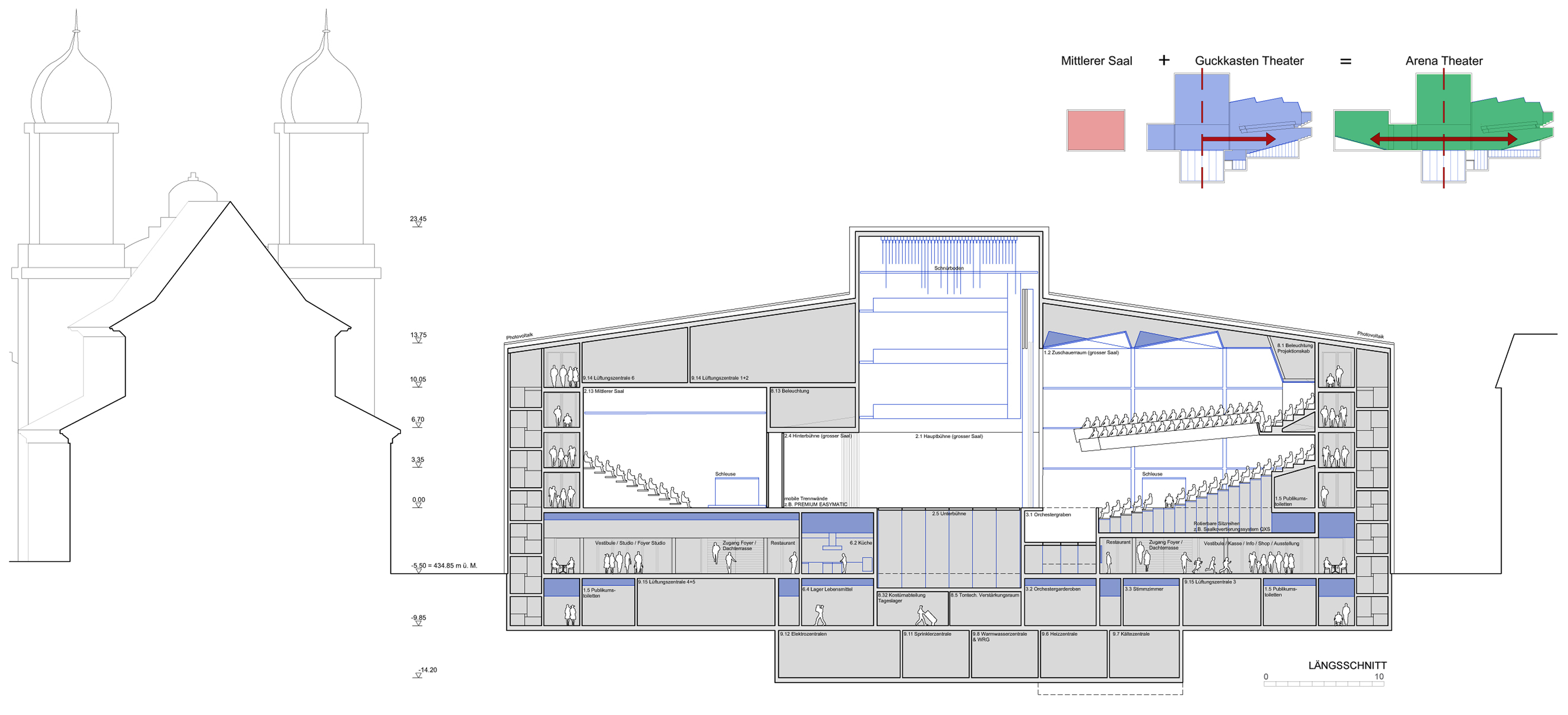
Publikums- und Bühnenräume
Studier- und Probenräume
Gastronomie
Veranstaltungsbetrieb
Projektteam:
Renzo Bader, Laura Pfeiffer
Auftraggeber:
Projektierungsgesellschaft
Neues Luzerner Theater
c/o Stadt Luzern







