
QUALIFIZIERTES STÄDTEBAULICHES VERFAHREN ROTKREUZ 2016
Eingeladener Projektwettbewerb
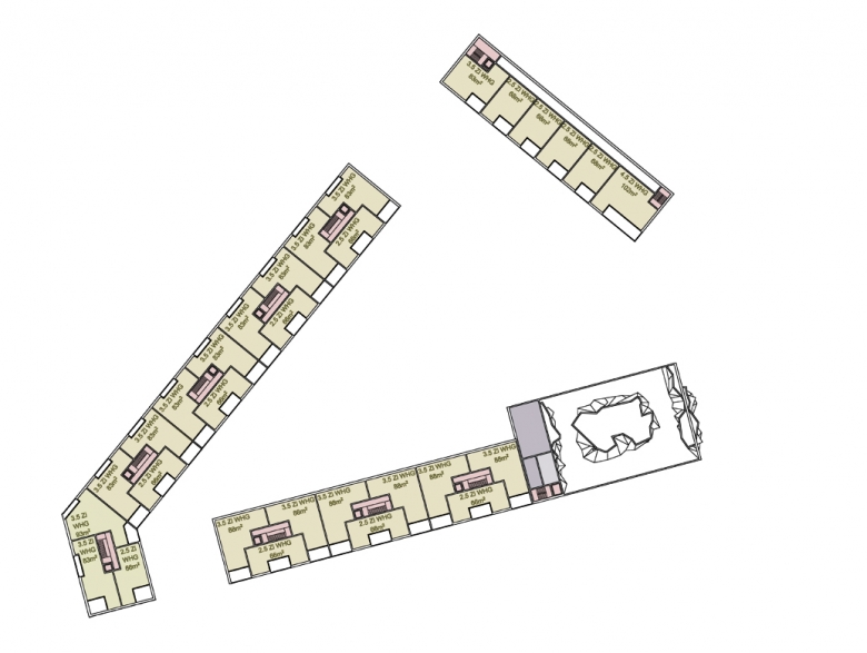
Wohnüberbauung
Gemeinschaftsnutzung
Gewerbe
Grossverteiler
Projektteam:
Renzo Bader, Magdalena Winiarz,
Yifei Wang, Maria Louise Tolstrup
Auftraggeber:
IG Chäsimatte




