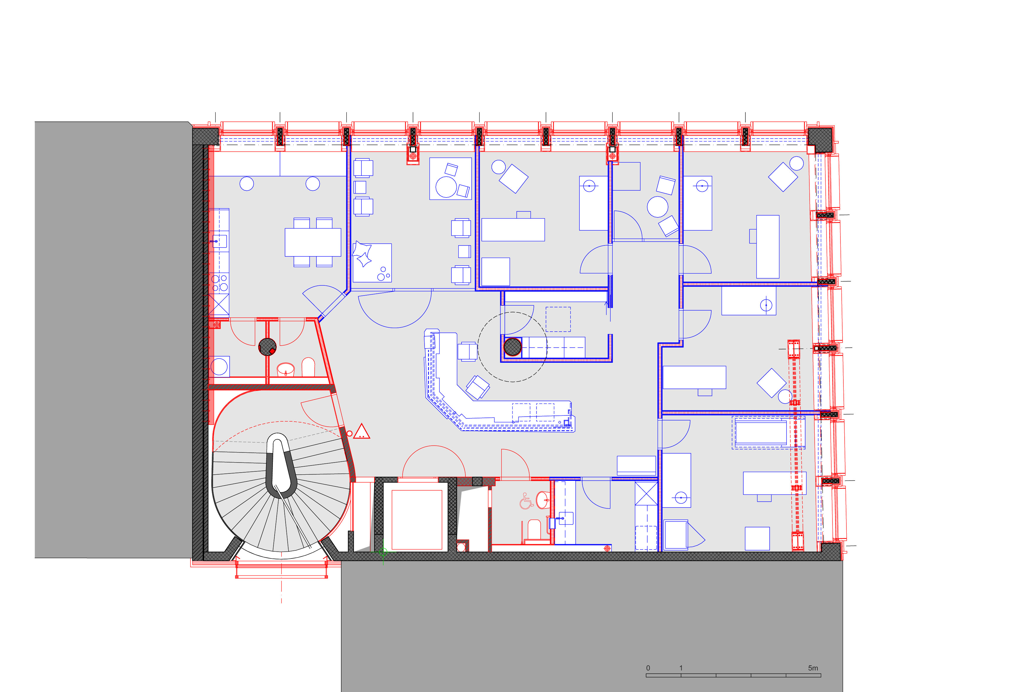
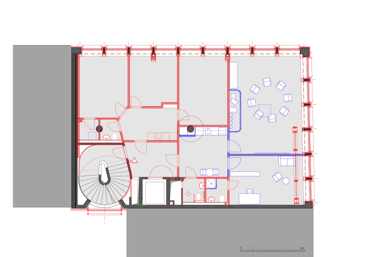
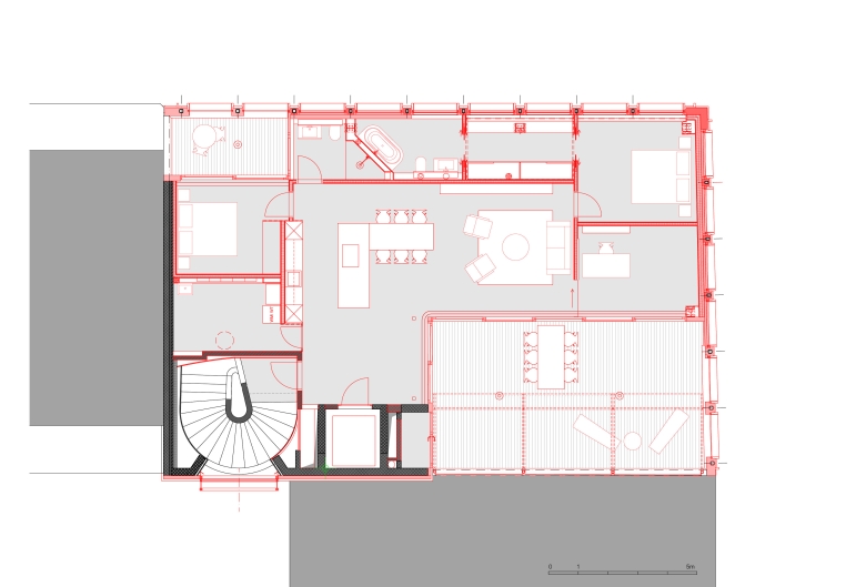
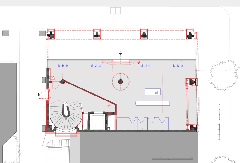
Umbau Bahnhofstrasse 15 Zug 2023

Ausführung konventionell

Wohn- und Geschäftshaus
Komplettsanierung mit Umnutzung
Projektteam:
Renzo Bader, Lucrezia Rapillo
Bauherrschaft:
Privat