
BEZIRKSGERICHT MEILEN 2015
Offener Projektwettbewerb
Bauingenieure:
Schnetzer Puskas Ingenieure AG
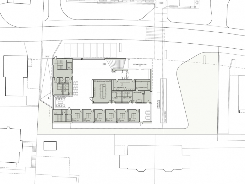
Gerichtssäle
Besprechungszimmern
Zellen und Wartezonen
Projektteam:
Renzo Bader, Magdalena Winiarz,
Diana Espitia, Ricardo Alves,
Mareike Krautzig
Auftraggeber:
Baudirektion Kanton Zürich, Hochbauamt










