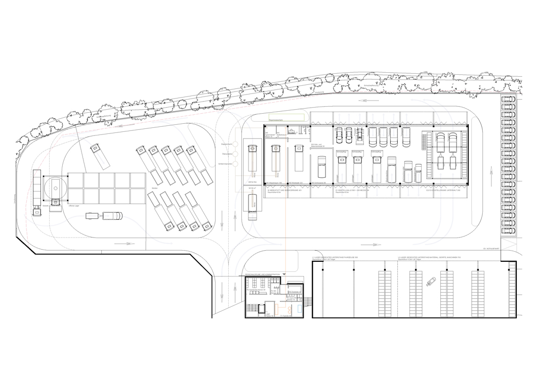
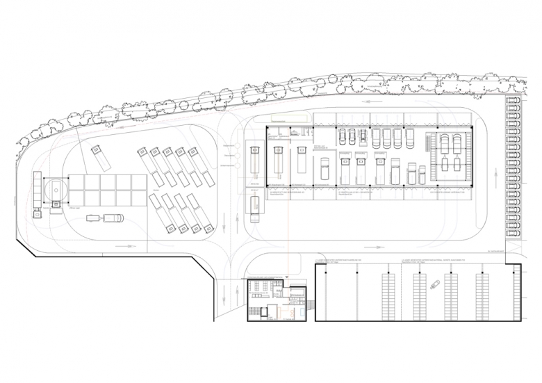
NEUBAU WERKHOF SISSACH 2015

Offener Projektwettbewerb

Bauingenieure:
Lauber Ingenieure AG

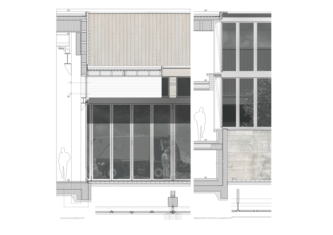
Werkstätten
Einstellhalle
Administration
Lager
Projektteam: Renzo Bader,
Magdalena Winiarz, Diana Espitia,
Ricardo Alves, Mareike Krautzig
Auftraggeber:
Bau- und Umweltschutzdirektion Kanton BL