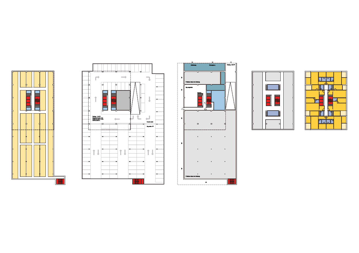
THEILERSTRASSE ZUG 2015

Wohnen
Gewerbe
Hotel
Retail
Parking
Projektteam:
Renzo Bader, Diana Espitia,
Magdalena Winiarz
Auftraggeber:
Mettler2Invest AG